Bezpłatna konsultacja Szukaj nieruchomości

Dom na sprzedaż

Gdańsk, Ujeścisko

Pokaż na mapie

Gdańsk |dom szeregowy 147m² z ogrodem i garażem

Powierzchnia 147.33 m2
Pow. działki 224 m2
Liczba pokoi 4

Numer oferty: 123608

Cena za m2:
Powierzchnia 147.33 m2
Pow. działki 224 m2
Liczba pokoi 4

Dane szczegółowe

Typ nieruchomości:

Dom

Typ transakcji:

Sprzedaż

Lokalizacja:

Gdańsk, Ujeścisko

Rodzaj budynku

Segment środkowy

Rodzaj własności

Inny

Sypialni

3

Łazienki

2

Piętro

Parter/2

Jasna kuchnia

Tak

Taras

Tak

Garaż

Tak

Parking

Tak

Prąd

Tak

Gaz

Tak

Woda

Tak

Kanalizacja

Tak

Piwnica

Tak

Centrum handlowe

Tak

Ogród

Tak

Autobus

Tak

Blisko lasu

Tak

Pod działalność gospodarczą

Tak

Opis nieruchomości

Przed Państwem wyjątkowa okazja do zamieszkania w jednej z najbardziej pożądanych lokalizacji Trójmiasta. 

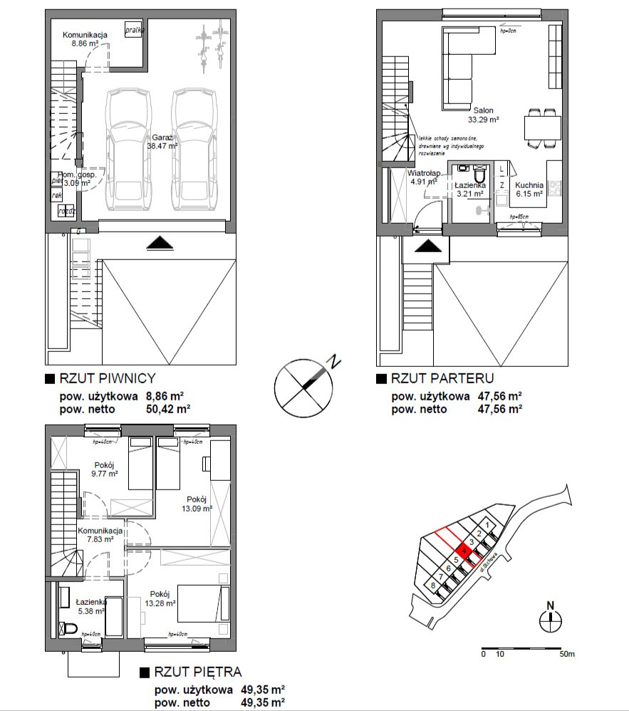
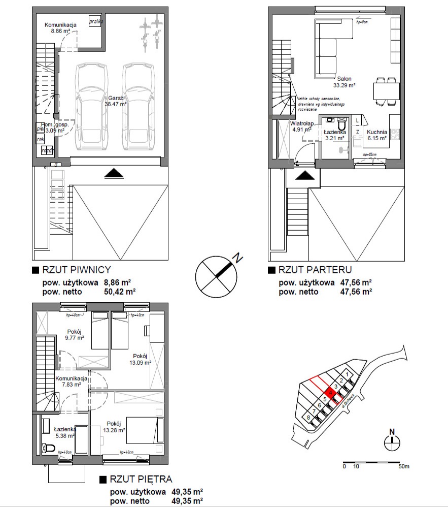
Dom nr 7/8

Prezentujemy dom w zabudowie szeregowej-segment środkowy o powierzchni całkowitej 147m² na nowoczesnym osiedlu Olchowa Dolina V.

15 minut od starego miasta i Galerii Bałtyckiej

Olchowa Dolina V to wyjątkowe miejsce na mapie Gdańska- zarówno pod względem projektu, jak i wykonania. Oferuje 147 m² powierzchni całkowitej, inteligentnie rozdzielonej na trzy funkcjonalne kondygnacje, które tworzą harmonijną i przestronną całość.

• Garaż i Piwnica (50,42 m²):
przestronny, dwustanowiskowy garaż to nie tylko miejsce na auto, ale i gwarancja wygody. Na tym poziomie znajduje się także nowoczesne pomieszczenie gospodarcze, w którym zlokalizowano wysokiej klasy pompę ciepła i rekuperator – gwarantujące niskie koszty eksploatacji i stały dopływ świeżego, filtrowanego powietrza przez cały rok.

• Parter (47,56 m²): wejście przez przestronny wiatrołap prowadzi do olśniewającej, otwartej przestrzeni dziennej. Przestronny salon z aneksem tworzy idealne miejsce zarówno dla rodzinnych spotkań, jak i przyjęć w gronie przyjaciół. Na tej kondygnacji znajduje się także łazienka.
• Pierwsze Piętro (49,35 m²):
ta kondygnacja jest strefą prywatną. Składa się z trzech komfortowych sypialni (o pow. 13,28 m², 13,09 m² i 9,77 m²) oraz przestronnej łazienki (5,38 m²), zapewniającej intymność i wypoczynek wszystkim domownikom.

To więcej niż dom, to fundament pod Twój wygodny styl życia.

Dodatkowe atuty podkreślające wyjątkowość nieruchomości:
• Słoneczna działka (224 m²)
• Sąsiedztwo:
kameralny charakter inwestycji i podobny standard zabudowy przyciągają wymagających, spokojnych mieszkańców, co gwarantuje wyjątkową atmosferę miejsca.
• Idealna lokalizacja:
zamknięta, spokojna enklawa w sercu nowoczesnej i doskonale skomunikowanej dzielnicy.

Dom jest w stanie deweloperskim premium i czeka na indywidualne wykończenie. To doskonała propozycja dla osób szukających własnego miejsca w spokojnej, a jednocześnie doskonale skomunikowanej części Gdańska.

https://nieruchomosci.phinance.pl/inwestycja/olchowa-dolina-v-53987/

Domy w inwestycji: (powierzchnia/powierzchnia działki/ cena ofertowa/dostępność)
1 szeregowy 147.33 m² /213 m² / 1 890 000 zł / Rezerwacja
2 szeregowy 147.33 m²/188 m² / 1 850 000 zł/ Rezerwacja
3 szeregowy 147.33 m² /211 m² / 1 880 000 zł / Wolne
4 szeregowy 147.33 m² /234 m² /1 920 000 zł / Wolne
5 szeregowy 147.33 m² /257 m² / 1 940 000 zł / Wolne
6 szeregowy 147.33 m² /258 m² / 1 940 000 zł / Wolne
7 szeregowy 147.33 m² /224 m² / 1 910 000 zł / Wolne
8 szeregowy 147.33 m² /284 m² / 1 990 000 zł / Rezerwacja

Kupujący nie płaci prowizji.

Kompleksowe Wsparcie w Zakupie Twojego Domu
Dla naszych Klientów przygotowaliśmy bezpłatną, ekspercką pomoc w uzyskaniu optymalnego finansowania. Dzięki współpracy ze wszystkimi bankami komercyjnymi, zapewniamy dostęp do najlepszych ofert rynkowych. Nasi doradcy nie tylko zabiegają o najkorzystniejsze warunki kredytu, ale także, w razie potrzeby, profesjonalnie pomogą zbudować i udokumentować solidną zdolność kredytową pod zakup tej konkretnej nieruchomości.

Skontaktuj się, aby umówić się na prezentację inwestycji w trakcie powstawania.

Mapa

Gdańsk, Ujeścisko

Skip to content