Bezpłatna konsultacja Szukaj nieruchomości

Dom na sprzedaż

Gdańsk, Ujeścisko

Pokaż na mapie

Dom Szeregowy | Gdańsk | Działka 234 m² | Garaż

Powierzchnia 147.33 m2
Pow. działki 234 m2
Liczba pokoi 4
Rok budowy 2026

Numer oferty: 752522

Cena za m2:
Powierzchnia 147.33 m2
Pow. działki 234 m2
Liczba pokoi 4
Rok budowy 2026

Dane szczegółowe

Typ nieruchomości:

Dom

Typ transakcji:

Sprzedaż

Lokalizacja:

Gdańsk, Ujeścisko

Rodzaj budynku

Szeregowy

Rodzaj własności

Inny

Sypialni

3

Łazienki

2

Piętro

Parter/3

Dla studenta

Tak

Jasna kuchnia

Tak

Garaż

Tak

Piwnica

Tak

Ogród

Tak

Pod działalność gospodarczą

Tak

Opis nieruchomości

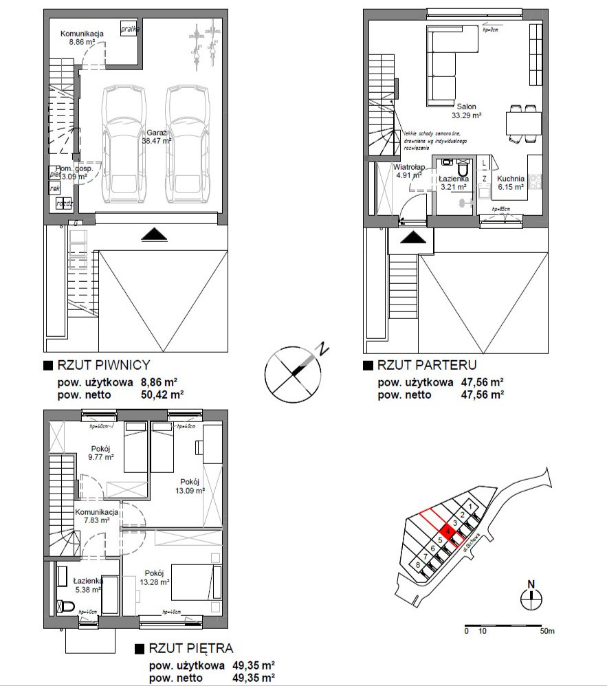
Na sprzedaż nowoczesny dom jednorodzinny w zabudowie szeregowej, położony w kameralnej inwestycji Olchowa Dolina V w Gdańsku. Nieruchomość oferuje:

  • Działka: 234 m²
  • Powierzchnia całkowita: 147,33 m²
  • Powierzchnia użytkowa: 105,77 m²
  • Garaż na dwa samochody: 38,47 m²

Dom został zaprojektowany z myślą o wygodnym życiu rodziny. Na parterze znajduje się przestronny salon z aneksem kuchennym, łazienka oraz wiatrołap.
Na piętrze zaplanowano trzy ustawne pokoje i drugą łazienkę.

Olchowa Dolina V to kameralna inwestycja obejmująca 8 domów w zabudowie szeregowej. Inwestycja znajduje się zaledwie kilka kilometrów od ścisłego śródmieścia Gdańska, co pozwala połączyć codzienny komfort życia w spokojnym otoczeniu z szybkim dojazdem do miasta.

Nieruchomość będzie oddana w standardzie deweloperskim. W części mieszkalnej przewidziano wentylację mechaniczną z rekuperacją, piec gazowy dwufunkcyjny do ogrzewania i ciepłej wody użytkowej, a także bramę garażową sterowaną elektrycznie. Dom będzie podłączony do sieci miejskich, co zwiększa wygodę użytkowania i bezpieczeństwo inwestycji.

Zapraszam do kontaktu i umówienia się na prezentację. Kupujący nie płaci prowizji.

Domy w inwestycji: (powierzchnia/powierzchnia działki/ cena ofertowa/dostępność)
1 szeregowy 147.33 m² /213 m² / 1 890 000 zł / Rezerwacja
2 szeregowy 147.33 m²/188 m² / 1 850 000 zł/ Rezerwacja
3 szeregowy 147.33 m² /211 m² / 1 880 000 zł / Wolne
4 szeregowy 147.33 m² /234 m² /1 920 000 zł / Wolne
5 szeregowy 147.33 m² /257 m² / 1 940 000 zł / Wolne
6 szeregowy 147.33 m² /258 m² / 1 940 000 zł / Wolne
7 szeregowy 147.33 m² /224 m² / 1 910 000 zł / Wolne
8 szeregowy 147.33 m² /284 m² / 1 990 000 zł / Rezerwacja

Mapa

Gdańsk, Ujeścisko

Skip to content