Bezpłatna konsultacja Szukaj nieruchomości

Mieszkanie na sprzedaż

Poznań, Wilda

Pokaż na mapie

3-pokojowy apartament 76m2 + balkon Bez Prowizji

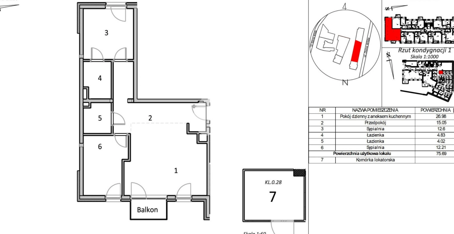
Powierzchnia 75.69 m2
Liczba pokoi 3

Numer oferty: 693718

Cena za m2:
Powierzchnia 75.69 m2
Liczba pokoi 3

Dane szczegółowe

Typ nieruchomości:

Mieszkanie

Typ transakcji:

Sprzedaż

Lokalizacja:

Poznań, Wilda

Rodzaj budynku

Kamienica

Rodzaj własności

Inny

Sypialni

2

Łazienki

2

Toalet

2

Piętro

2/6

Winda

Tak

Jasna kuchnia

Tak

Balkon

Tak

Parking

Tak

Prąd

Tak

Woda

Tak

Centrum miasta

Tak

Przedszkole

Tak

Uczelnia

Tak

Sklep spożywczy

Tak

Bazar

Tak

Plac zabaw

Tak

Centrum handlowe

Tak

Komórka lokatorska

Tak

Domofon

Tak

Osiedle strzeżone

Tak

Wideodomofon

Tak

Drzwi antywłamaniowe

Tak

Kamery wideo

Tak

Monitoring

Tak

Basen

Tak

Telefon

Tak

Internet

Tak

Telewizja kablowa

Tak

Las

Tak

Park

Tak

PKS

Tak

Autobus

Tak

Kolej podmiejska

Tak

Tramwaj

Tak

Kolej

Tak

Fitness

Tak

Bank

Tak

Apteka

Tak

Szpital

Tak

Żłobek

Tak

Opis nieruchomości

Wysokie pomieszczenia do 2,9 m potęgują wrażenie przestrzeni i lekkości. Duże, drewniane okna wpuszczają więcej światła dziennego, dzięki czemu wnętrza są jasne i pełne energii. Tarasy wykończone deską z daglezji wyglądają elegancko i dają naturalne, ciepłe odczucie podczas codziennego użytkowania.

NOWOCZESNE APARTAMENTY W SERCU WILDY !!!

Wybitny apartament i częsci wspólne, nowoczesna architektura, wysoki standard wykończenia, teren zamknięty, monitoring, ochrona. Wewnętrzny zielony dziedziniec został zaprojektowany jako prywatna oaza mieszkańców z mozaiką roślin i harmonijną kompozycją, która daje poczucie spokoju tuż po wyjściu z domu.

Nie pobieram prowizji od klienta
0% podatku PCC (oszczędność 23000 PLN !)
Chętnie pomogę także z kredytem

Wyobraź sobie życie, w którym wszystko masz w zasięgu krótkiego spaceru. W 5 minut dojdziesz do Starego Browaru, na zakupy lub do kina, a w kwadrans na Stary Rynek do ulubionej kawiarni czy restauracji. W kilka chwil dotrzesz również do pracy w biurowcach Nowego Rynku. Blisko jest też dworzec i przystanki komunikacji miejskiej.

Zadzwoń już teraz i przekonaj się, że można inaczej

************
Maciej Niełacny

Ekspert ds. nieruchomości

Phinance Nieruchomości

W ofercie dostępne są również inne metraże oraz układy mieszkań w tej inwestycji.

Rzut oraz wizualizacje przedstawiają przykładowy sposób aranżacji wnętrza.

Powyższa oferta ma charakter informacyjny i nie stanowi oferty handlowej w rozumieniu art. 66 §1 Kodeksu Cywilnego.

Rzuty

Mapa

Poznań, Wilda

Skip to content