Bezpłatna konsultacja Szukaj nieruchomości

Mieszkanie na sprzedaż

Warszawa, Białołęka, ul. Topolowa

Pokaż na mapie

Premium Point, 2 pokoje, do wprowadzenia

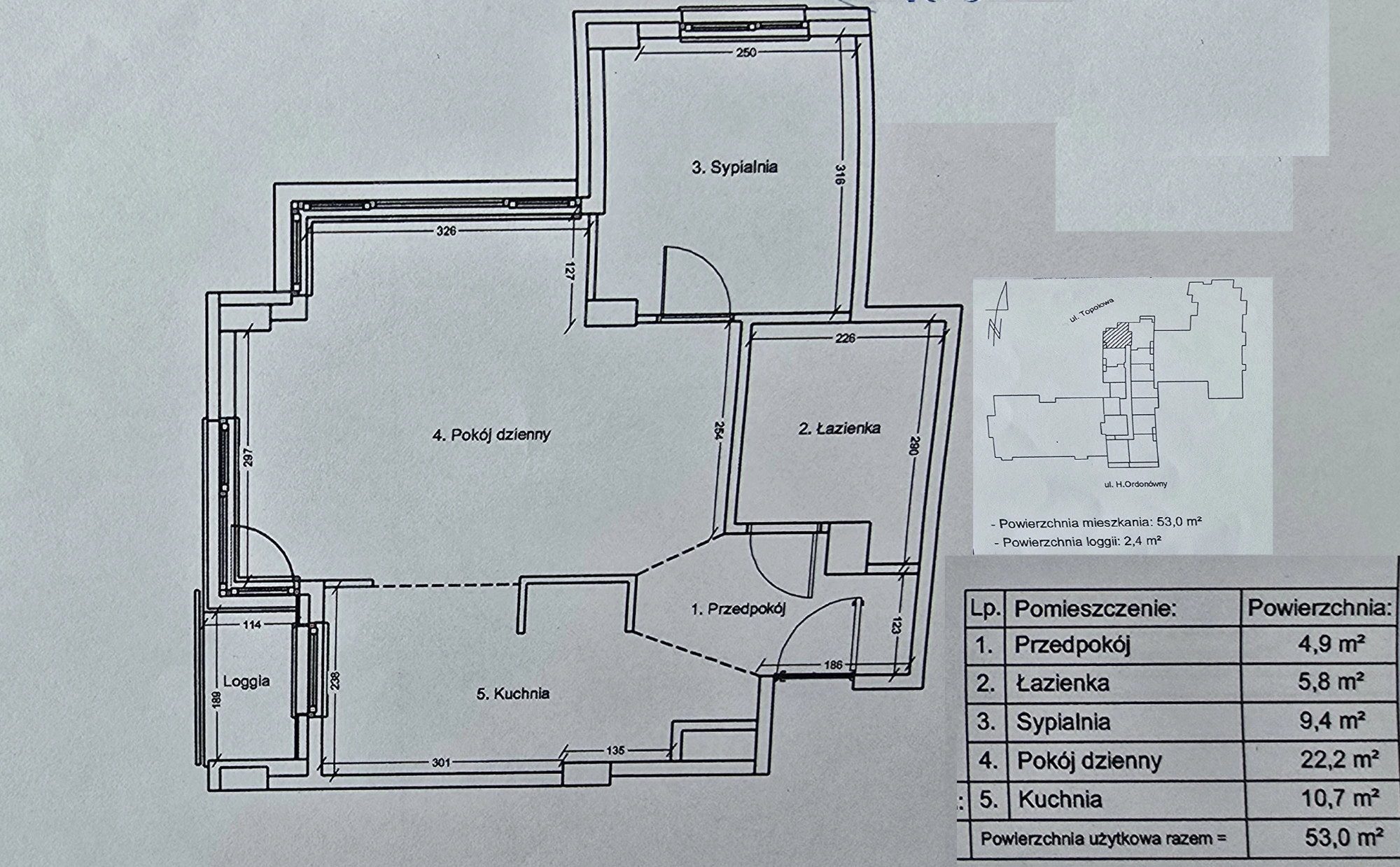
Powierzchnia 53 m2
Liczba pokoi 2
Rok budowy 2014

Numer oferty: 959597

Cena za m2:
Powierzchnia 53 m2
Liczba pokoi 2
Rok budowy 2014

Dane szczegółowe

Typ nieruchomości:

Mieszkanie

Typ transakcji:

Sprzedaż

Lokalizacja:

Warszawa, Białołęka, ul. Topolowa

Rodzaj budynku

Apartamentowiec

Rodzaj własności

Inny

Sypialni

1

Łazienki

1

Piętro

7/11

Winda

Tak

Jasna kuchnia

Tak

Balkon

Tak

Garaż

Tak

Parking

Tak

Prąd

Tak

Woda

Tak

Kanalizacja

Tak

Piwnica

Tak

Loggia

Tak

Komórka lokatorska

Tak

Domofon

Tak

Osiedle strzeżone

Tak

Recepcja

Tak

Monitoring

Tak

Dostęp dla niepełnosprawnych

Tak

Telefon

Tak

Internet

Tak

Telewizja kablowa

Tak

Autobus

Tak

Blisko lasu

Tak

Opis nieruchomości

Premium Point, 2 pokoje + balkon, otwarta widna kuchnia, mieszkanie do wprowadzenia.

Bezpieczne, zamknięte, monitorowane, dodatkowo chronione, pełne udogodnień dla mieszkańców osiedle (bez barier architektonicznych). Wewnętrzny plac zabaw dla dzieci, zielone części wspólne, stojaki na rowery zarówno na poziomie 0, jak i w garażu podziemnym. Bardzo dobrze funkcjonująca wspólnota mieszkaniowa, ułatwiająca życie mieszkańcom. 

Mieszkanie z panoramicznym widokiem, ciche, widne, narożne (zachód, północ).
Stan gotowy do wprowadzenia.
Pomieszczenia:
– salon o powierzchni (22,2 m2) wyjściem na balkon (2,4m2). (zachód, północ)
– sypialnia (9,4 m2) (północ),
– kuchnia (10,7 m2) w pełni wyposażona, widna (z oknem), częściowo otwarta na salon (możliwość zamknięcia),
– łazienka (5,8 m2) wyposażona w wannę, pralkę, umywalkę, WC,
– hall z szafą wnękową.

Pełna infrastruktura w najbliższej okolicy- publiczna szkoła podstawowa (30m), Galeria pod Dębami 300m (Stokrotka, Pepco, apteka, Rossmann, Poczta Polska), paczkomat tuż obok przystanku autobusowego 110m, dojazd do ul. Modlińskiej 850m.

Czynsz: ok. 625 zł
Dodatkowo, nieobligatoryjnie miejsce parkingowe w garażu podziemnym (50 000 zł), komórką lokatorską (20 000 zł). 
Więcej informacji udzielę telefonicznie.
Zapraszam do kontaktu

Rzuty

Mapa

Warszawa, Białołęka, ul. Topolowa

Skip to content