Bezpłatna konsultacja Szukaj nieruchomości

Dom na sprzedaż

Odrzechowa

Pokaż na mapie

Dom w stanie deweloperskim 180m, działka 31a

Powierzchnia 180 m2
Pow. działki 3066 m2
Liczba pokoi 7
Rok budowy 2024

Numer oferty: 761059

Cena za m2:
Powierzchnia 180 m2
Pow. działki 3066 m2
Liczba pokoi 7
Rok budowy 2024

Dane szczegółowe

Typ nieruchomości:

Dom

Typ transakcji:

Sprzedaż

Lokalizacja:

Odrzechowa

Rodzaj budynku

Wolnostojący

Rodzaj własności

Inny

Piętro

Parter/1

Opis nieruchomości

Szukasz wymarzonego domu z dużym potencjałem?
Mam dla Ciebie ofertę, która Cię zachwyci!

Do sprzedaży oferuję przestronny, dwupiętrowy dom o powierzchni 180 m2, posadowiony na równej działce o powierzchni 31 arów. Nieruchomość znajduje się w malowniczej okolicy, w pobliżu jeziora i zapory w Sieniawie, co czyni ją idealnym miejscem na wypoczynek po pracowitym dniu.

Dom w stanie deweloperskim, co daje Ci swobodę aranżacji wnętrz według własnych potrzeb.

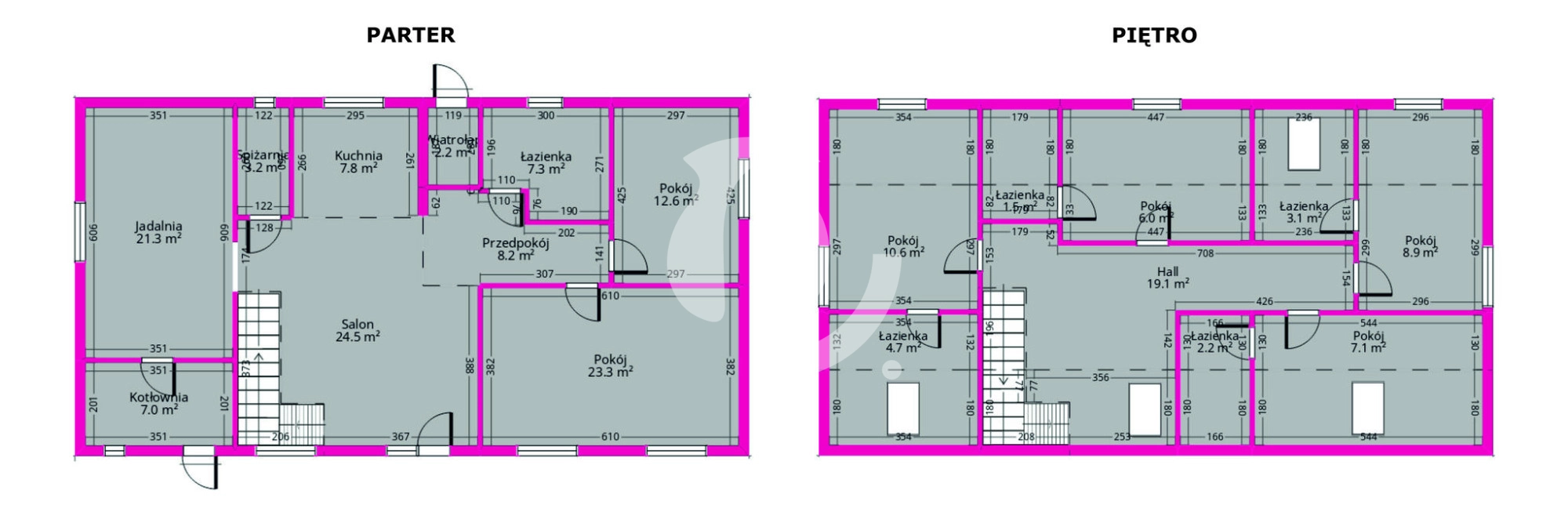
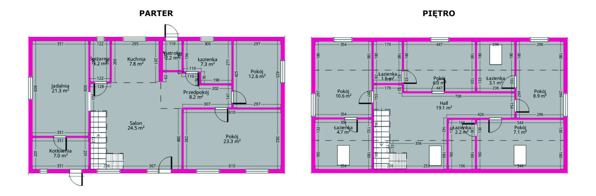
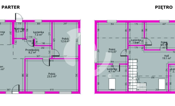
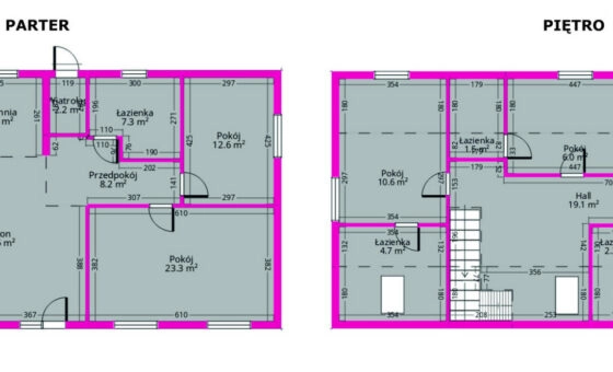
Parter:
* 2 pokoje
* Salon z aneksem kuchennym
* Jadalnia
* Spiżarnia
* Łazienka
* Kotłownia

Piętro:
* Duży hall
* 4 pokoje, każdy z osobną łazienką (możliwość przystosowania pod garderoby)

Dodatkowe atuty nieruchomości:
* Dach ocieplony pianą 20 cm
* Wszystkie okna PCV
* Dojazd drogą gminną asfaltową
* Prąd
* Gaz na działce
* Kanalizacja miejska
* Woda miejska na działce
* Instalacja elektryczna zamontowana w 2023 roku
* Ogrzewanie podłogowe

W okolicy:
* Jezioro i zapora w Sieniawie (ok. 4 km)
* Miejsce do zabaw dla dzieci „Bajkowa Kraina” (ok. 1,5 km)
* Ośrodek jeździecki (ok. 3 km)
* Punkt widokowy (ok. 3 km)
* Trawertyny w Rudawce Rymanowskiej (ok. 6 km)
W okolicy zimową porą:
* Lodospady w Rudawce Rymanowskiej (ok. 6 km)
* Ośrodek Sportów Zimowych w Puławach (ok. 11 km)

To idealna propozycja dla osób szukających:
* Przestronnego domu dla rodziny
* Spokojnej i malowniczej okolicy
* Bliskości natury
* Możliwości aktywnego wypoczynku

Nie czekaj, skontaktuj się ze mną i umów się na prezentację!

Nasze usługi świadczymy w oparciu o umowę pośrednictwa, która gwarantuje Państwu bezpieczeństwo oraz pełną opiekę na każdym etapie transakcji. Za wykonaną usługę pobieramy wynagrodzenie zgodnie z warunkami zawartymi w umowie.

Mapa

Odrzechowa

Skip to content