Bezpłatna konsultacja Szukaj nieruchomości

Działka na sprzedaż

Skrzynki

Pokaż na mapie

dla dewelopera – blisko Kórnik/s11

Pow. działki 28241 m2

Numer oferty: 641685

Cena za m2:
Pow. działki 28241 m2

Dane szczegółowe

Typ nieruchomości:

Działka

Typ transakcji:

Sprzedaż

Lokalizacja:

Skrzynki

Przeznaczenie

Pod zabudowę jednorodzinną

Rodzaj własności

Inny

Prąd

Tak

Gaz

Tak

Woda

Tak

Internet

Tak

Szambo

Tak

Blisko lasu

Tak

Opis nieruchomości

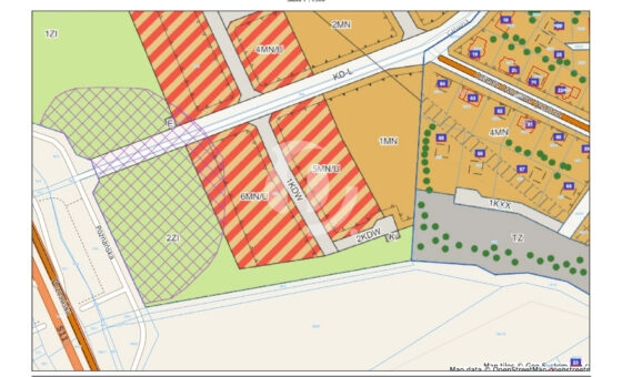
Na sprzedaż działka objęta miejscowym planem zagospodarowanie przestrzennego, z przeznaczeniem pod zabudowę jednorodzinną oraz jednorodzinną z usługami.

Według wstępnej koncepcji można wydzielić minimum 14 działek co daje 28 lokali. Działki od 800 do prawie 3500 m2 z dużym ogrodami.

Dojazd drogą asfaltową. Do Kórnika ok 1,5 kilometra, ok 20km do Poznania (Rondo Rataje).W pobliżu znajduje się przystanek komunikacji podmiejskiej (400 metrów). Bezpośrednie sąsiedztwo to tereny rolnicze oraz zabudowa jednorodzinna.

Wg plan miejscowego teren oznaczony między innymi symbolami MN i MN/U, dopuszcza się:
– powierzchnia zabudowy od 30 do 35% powierzchni działki
– wysokość budynków do 9 metrów, dachy skośne
– możliwość posadowienia budynków pomocniczych do 50m2
– zabudowa jednorodzinna wolnostojąca

W drodze media (prąd, woda, gaz).

Podana cena to cena netto, do której nalezy doliczyć podatek VAT w wysokości 23%.

Mapa

Skrzynki

Opiekun oferty

Adam Kisiel

Regionalny MBI Departamentu Nieruchomości | Doradca ds. nieruchomości

Wielkopolskie

Sprawdź podobne ogłoszenia

Zobacz wszystkie
Skip to content