Bezpłatna konsultacja Szukaj nieruchomości

Mieszkanie na sprzedaż

Gdynia

Pokaż na mapie

Gotowe 3 stronne 2 balkony 66m2 Gdynia

Powierzchnia 65.88 m2
Liczba pokoi 3
Rok budowy 2026

Numer oferty: 195601

Cena za m2:
Powierzchnia 65.88 m2
Liczba pokoi 3
Rok budowy 2026

Dane szczegółowe

Typ nieruchomości:

Mieszkanie

Typ transakcji:

Sprzedaż

Lokalizacja:

Gdynia

Rodzaj budynku

Apartamentowiec

Rodzaj własności

Inny

Sypialni

2

Łazienki

1

Toalet

2

Piętro

1/3

Dla studenta

Tak

Winda

Tak

Jasna kuchnia

Tak

Balkon

Tak

Parking

Tak

Prąd

Tak

Woda

Tak

Kanalizacja

Tak

Piwnica

Tak

Poza centrum miasta

Tak

Przedmieście

Tak

Poza zabudową zwartą

Tak

Przedszkole

Tak

Uczelnia

Tak

Sklep spożywczy

Tak

Bazar

Tak

Plac zabaw

Tak

Centrum handlowe

Tak

Komórka lokatorska

Tak

Domofon

Tak

Wideodomofon

Tak

Drzwi antywłamaniowe

Tak

Kamery wideo

Tak

Dostęp dla niepełnosprawnych

Tak

Basen

Tak

Internet

Tak

Telewizja kablowa

Tak

Las

Tak

Park

Tak

Jezioro

Tak

PKS

Tak

Autobus

Tak

Kolej podmiejska

Tak

Trolejbus

Tak

Kolej

Tak

Fitness

Tak

Bank

Tak

Apteka

Tak

Szpital

Tak

Lotnisko

Tak

Żłobek

Tak

Blisko jeziora

Tak

Blisko lasu

Tak

Pod działalność gospodarczą

Tak

Opis nieruchomości

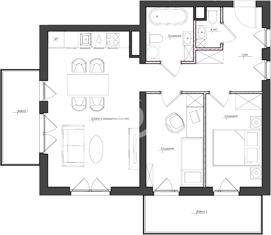
Nowoczesne 3-pokojowe mieszkanie, 3 stronne z 2-ma balkonami, przy ścianie lasu | Gdynia Chylonia

Cena całkowita: 808.000 zł (w tym obligatoryjne dodatki) Powierzchnia użytkowa: 65,15 m² Liczba pokoi: 3 Piętro: 1
Oferuję na sprzedaż wyjątkowe, nowocześnie zaprojektowane mieszkanie zlokalizowane w spokojnej i zielonej części Gdyni Cisowej/Chyloni. To idealna propozycja dla osób ceniących bliskość natury, a jednocześnie wymagających szybkiego dostępu do pełnej miejskiej infrastruktury.

Rozkład pomieszczeń

Mieszkanie charakteryzuje się niezwykle funkcjonalnym układem:

• Przestronny salon (26,79 m²) z aneksem kuchennym i balkonem – idealne miejsce do relaksu i przyjmowania gości.
• Wygodna sypialnia 1 o powierzchni 10,36 m² z balkonem.
• Wygodna sypialnia 2 o powierzchni 10,08 m² z balkonem.
• Duża łazienka o powierzchni 4,88 m²
• WC o powierzchni 1,66 m²
• Funkcjonalny duży hol o powierzchni 11,38 m² doświetlony 2-ma oknami.

2 Komórki i podziemne miejsce parkingowe (w promocji) obligatoryjne, wliczone w cenę całkowitą: 821.800,- zł.

Otoczenie i Lokalizacja

Inwestycja to prawdziwe leśne zacisze – osiedle otoczone jest z trzech stron lasem i sąsiaduje bezpośrednio z Trójmiejskim Parkiem Krajobrazowym. Jednocześnie lokalizacja gwarantuje doskonałą komunikację:

Komunikacja miejska: Zaledwie 250 m do przystanku autobusowego i 850 m do stacji SKM Cisowa. Do centrum Gdyni dotrzesz w 10 minut.
Dla kierowców: Szybki wyjazd na obwodnicę/S4 – zaledwie 1,3 km od osiedla.
Wypoczynek: Dojazd na miejską plażę to kwestia 15 minut, a na urokliwy Cypel Rewski dojedziesz w 35 minut.

Pełna infrastruktura na wyciągnięcie ręki

W najbliższej okolicy znajduje się wszystko, czego potrzebujesz na co dzień:
• Sklep spożywczy (Biedronka) – 850 m.
• Placówki edukacyjne: przedszkole (750 m) oraz szkoła podstawowa (850 m).
• Zdrowie i opieka: przychodnia (1,5 km) oraz całodobowy weterynarz (750 m).
• Większe zakupy zrobisz w oddalonym o 1,3 km DT Chylonia.

FINANSOWANIE
• Phinance S.A. – od lat specjalizujemy się w kompleksowym doradztwie finansowym i kredytowym.
Pomagamy w bezpiecznym przeprowadzeniu całego procesu zakupu, również z finansowaniem hipotecznym.

KONTAKT (6 dni w tygodniu 9:oo – 21:oo):
Adam Leks — doradca sprzedaży i finansowania Phinance S.A. Gdynia e mail: Adam.Leks@Phinance.pl, tel.: +48 604 626 212

Wizualizacje mają charakter poglądowy i nie stanowią oferty w rozumieniu art. 66 Kodeksu cywilnego. Mieszkanie sprzedawane w stanie deweloperskim. Zapraszam do kontaktu — chętnie umówię prezentację i przygotuję dodatkowe materiały.

Rzuty

Mapa

Gdynia

Opiekun oferty

Skip to content